forside
projektet
Området
boligerne
download
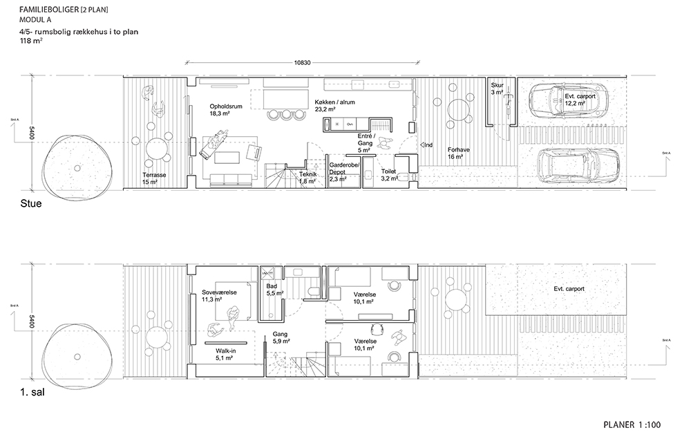
Boligen
Krekærtoften 10A
Status:
Ledig
Husstørrelse:
118
Grundstørrelse:
Rum:
4/5
Pris:
0
pdf: